Home
Renovations / Extensions
Underground Rainwater Tanks
Earthmoving / Excavation
Development
Contact
Home
Renovations / Extensions
Underground Rainwater Tanks
Earthmoving / Excavation
Development
Contact
Development
Our current development project is 28 Relowe Cres Balwyn. The project is still at planning stage but the design is really exciting and we canÔÇÖt wait to start work.
click any image for larger view
Proposed site plan
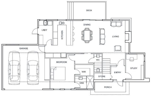
Villa Number 1
Ground Floor
Villa Number 1
First floor
Villa Number 1
Elevations
Villa Number 2
Ground Floor
Villa Number 2
First Floor
Villa Number 2
Elevations
Villa Number 3
Ground floor
Villa Number 3
First floor plan
villa Number 2
Elevations